work
about
Menu
URCHITECTURE
work
about
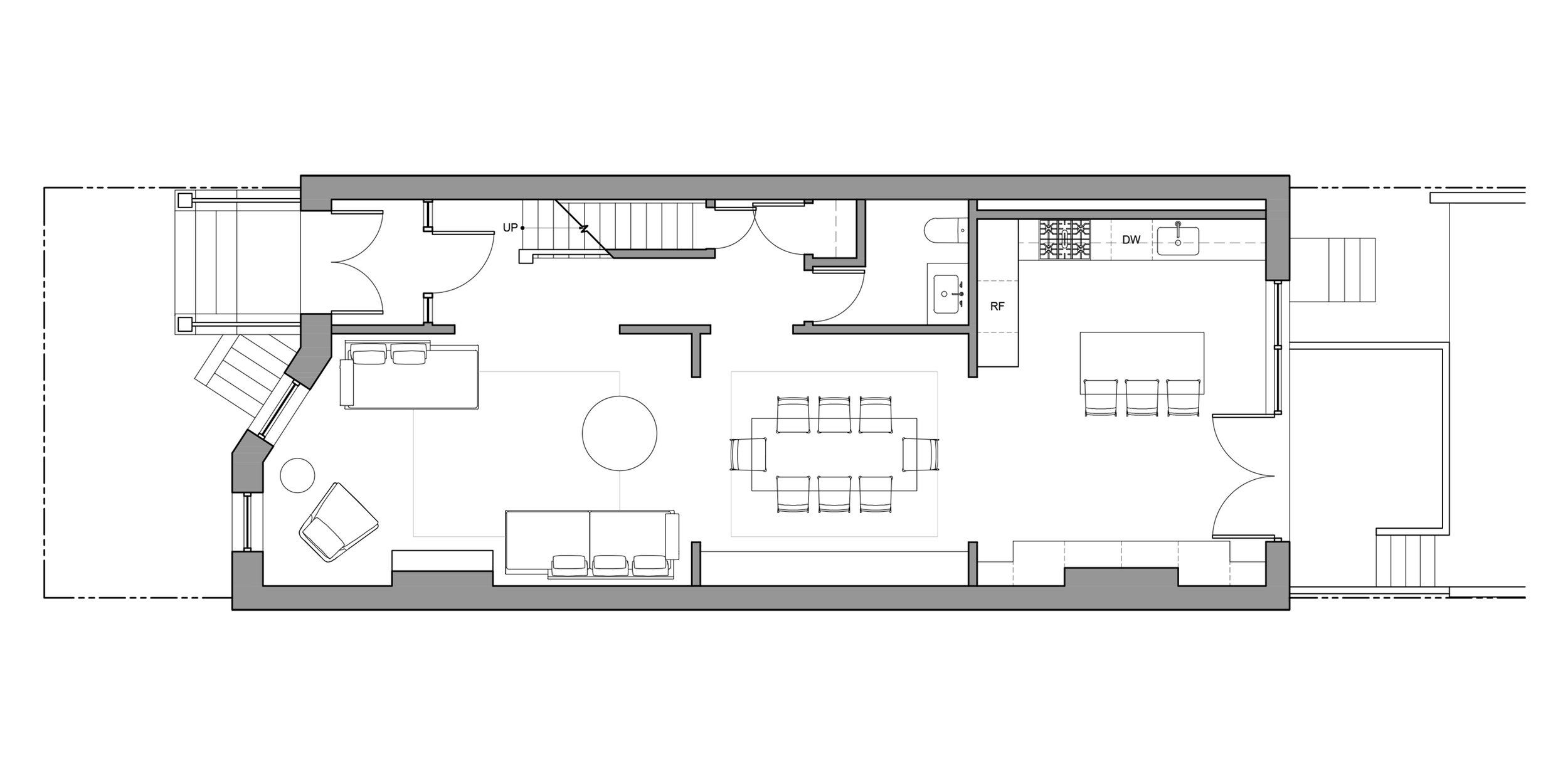
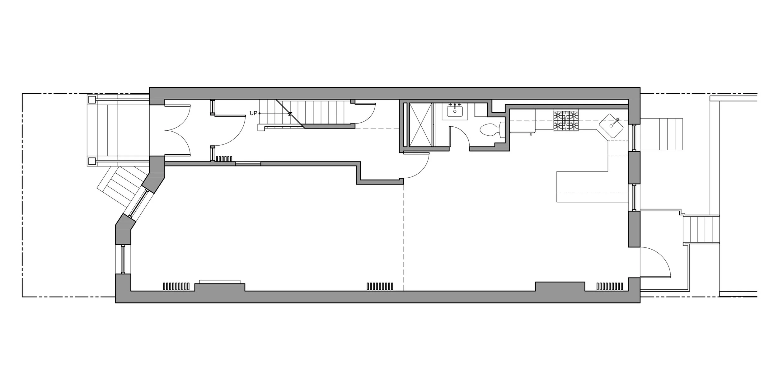
Park Slope Townhouse
First Floor Plan | Before
First Floor Plan | After
Brooklyn, NY | 2021